Hier bekommen Sie eine großzügige Doppelhaushälfte mit großem Garten, Dachterrasse und Garage zu einem sehr guten Preis! Die Immobilie befindet sich in ruhiger aber gut gelegener Wohnlage von Ludwigsburg-Ost.
Durch die Aufteilung in drei Wohnetagen, welche über ein Treppenhaus separat zugänglich sind, ist dieses Haus auch perfekt als Mehrgenerationenhaus oder als Zweifamilienhaus nutzbar. Im OG und DG wurden zuletzt die Elektrik und die Sanitärbereiche erneuert.
Das Haus wurde 1952 erbaut und bietet über ein Treppenhaus Zugang zu drei Wohnetagen (EG, OG, DG). Das Erdgeschoss mit seinen 3,5 Zimmern bietet neben viel Platz und großem Wintergarten auch einen direkten Zugang zur Terrasse. Der angrenzende Garten bietet ideale Verhältnisse für ausgiebige Grillabende und gemütliches Beisammensein. Der Garten mit Gartenhütte kann mit ein wenig Liebe wieder zum Leben erweckt werden.
Das Badezimmer ist mit einer Dusche und WC ausgestattet. Die Aufteilung ist sehr gelungen. Neben einem Kinderzimmer, ist das Esszimmer zum Wohnzimmer offengehalten. Der Wintergarten lädt zum Entspannen ein und bietet einen schönen Blick in den Garten.
In der oberen Etage befindet sich ein Schlafzimmer, sowie ein Wohn- und Esszimmer. Die Grundrisse sind ähnlich zum EG. Auch hier befinden sich im Bad Dusche und WC. Das Wohnzimmer hat Zugang zur großen Dachterrasse. Genießen Sie hier gerne den Feierabend und den schönen Ausblick.
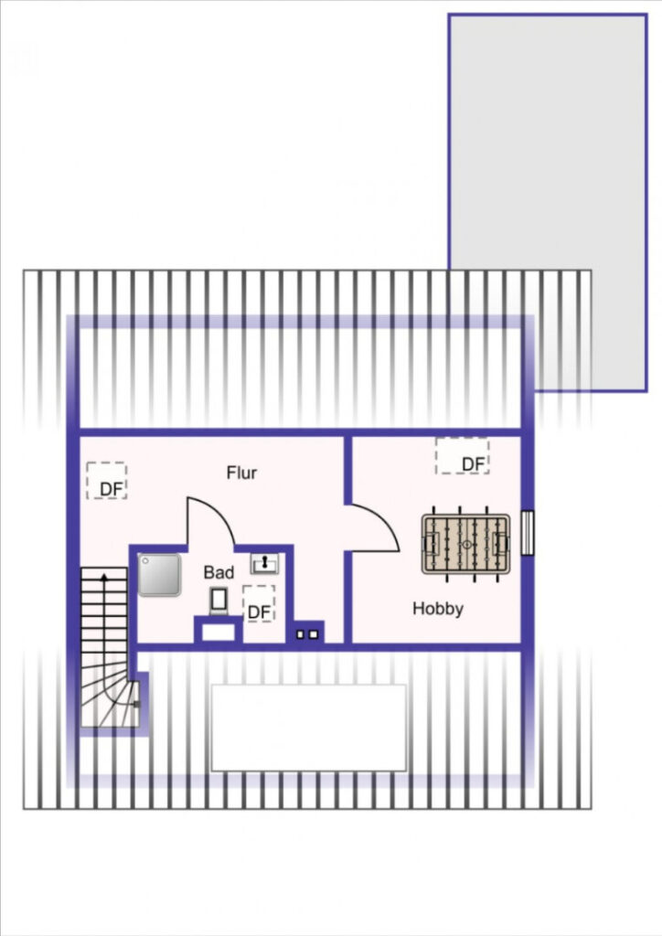
Der Dachboden ist vollständig zu Wohnraum ausgebaut. Neben einem eigenen Bad gibt es hier oben noch einen Hobbyraum.
Im Untergeschoss ist neben Gewölbekeller und Heizraum auch ein Hobbyraum zu finden. Von hier gelangen Sie direkt in die große Garage mit Werkstatt. Auch direkt vor der Garage können Sie gut parken.



